| Chủ đầu tư: MR Tuấn |
| Địa chỉ: Đan Phượng – Hà Nội |
| Loại hình: Nhà hiện đại |
| Diện tích: 102.4 m2/sàn, bao gồm 9.75 m mặt tiền và 10.5 m chiều dài nhà.
Công năng:
|
Mặt tiền của ngôi nhà hiện đại hình chữ L này có vẻ ngoài sang trọng và độc đáo. Với cửa chính lớn và cửa sổ kính rộng, nó tạo điểm nhấn mạnh mẽ và tạo điều kiện cho ánh sáng tự nhiên. Đường nét của ngôi nhà được thiết kế hài hòa và đẹp mắt, với việc sử dụng các vật liệu hiện đại như gạch, kính và kim loại. Các chi tiết trang trí và cấu trúc kiến trúc độc đáo tạo ra một vẻ đẹp thẩm mỹ và cá nhân hóa.
Mặt bên của ngôi nhà hiện đại này tiếp tục phản ánh sự hiện đại và sáng tạo của kiến trúc. Với các dãy cửa kính và cửa sổ lớn, mặt bên mang lại không gian mở và kết nối với môi trường xung quanh.
Các đường nét của ngôi nhà được thiết kế mạnh mẽ và độc đáo, tạo ra một cái nhìn độc đáo và thú vị. Các cấu trúc kiến trúc như ban công, sân thượng hoặc lều xếp có thể được thêm vào, tạo ra không gian sống ngoài trời và thư giãn.
Với việc sử dụng các vật liệu như gạch, kính và kim loại, mặt bên tạo ra một cảm giác hiện đại và sang trọng. Các chi tiết trang trí như cây xanh, hoa văn hoặc tường gạch cũng có thể được thêm vào để làm tăng tính thẩm mỹ và cá nhân hóa của ngôi nhà.
Tổng thể, mặt bên của ngôi nhà này không chỉ là một phần của kiến trúc, mà còn là một phần của không gian sống và trải nghiệm, tạo ra một môi trường sống đẳng cấp và thoải mái cho cả gia đình.
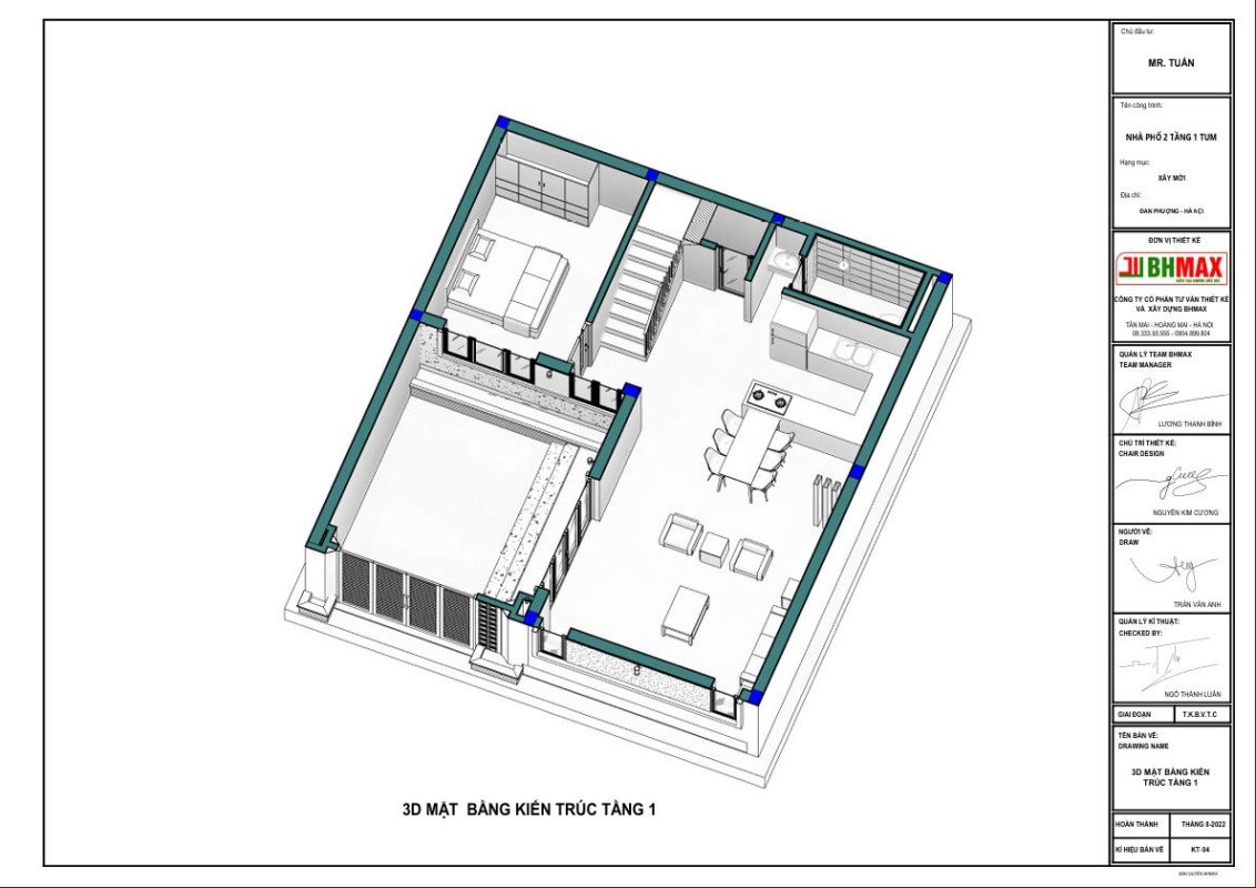
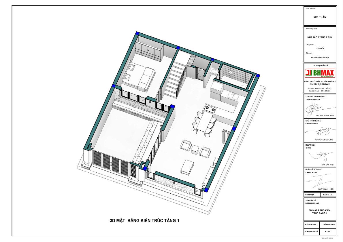
* Tầng 1:
- Phòng khách:
- Phòng khách rộng rãi và thoải mái, được bố trí ở phần trước của tầng.
- Thiết kế theo hình chữ L, tạo không gian mở giữa phòng khách và khu vực ăn uống.
- Cửa kính lớn hoặc cửa trượt mở ra sân vườn phía trước, tạo cảm giác thông thoáng và kết nối với bên ngoài.
- Bếp:
- Bếp hiện đại được tích hợp ngay gần khu vực ăn uống, tạo sự tiện lợi khi chuẩn bị và phục vụ bữa ăn.
- Thiết kế mở, tiện lợi cho việc di chuyển và làm việc trong không gian bếp.
- Được trang bị đầy đủ các thiết bị gia dụng hiện đại và tủ kệ lưu trữ để tối ưu hóa không gian.
- Phòng ngủ:
- Phòng ngủ ở tầng trệt thường được thiết kế cho sự tiện lợi của người lớn tuổi hoặc người khuyết tật.
- Có thể có kích thước trung bình và được trang bị đầy đủ tiện nghi.
- WC:
- WC dành riêng cho tầng trệt, tiện lợi cho việc sử dụng hàng ngày của cả gia đình và khách đến thăm.
- Có thể được thiết kế với các tiện nghi hiện đại như vòi sen và lavabo.
- Để xe sân trước:
- Khu vực để xe sân trước được thiết kế để tiết kiệm không gian và tạo sự tiện lợi cho việc đậu xe.
- Có thể có mái che hoặc cấu trúc bảo vệ để bảo vệ xe khỏi thời tiết và bụi bẩn.
Tổng thể, Tầng 1 là không gian sống đa năng và tiện ích, kết hợp giữa phòng khách, bếp, phòng ngủ, WC và khu vực để xe, tạo ra một môi trường sống thoải mái và tiện nghi cho cả gia đình.
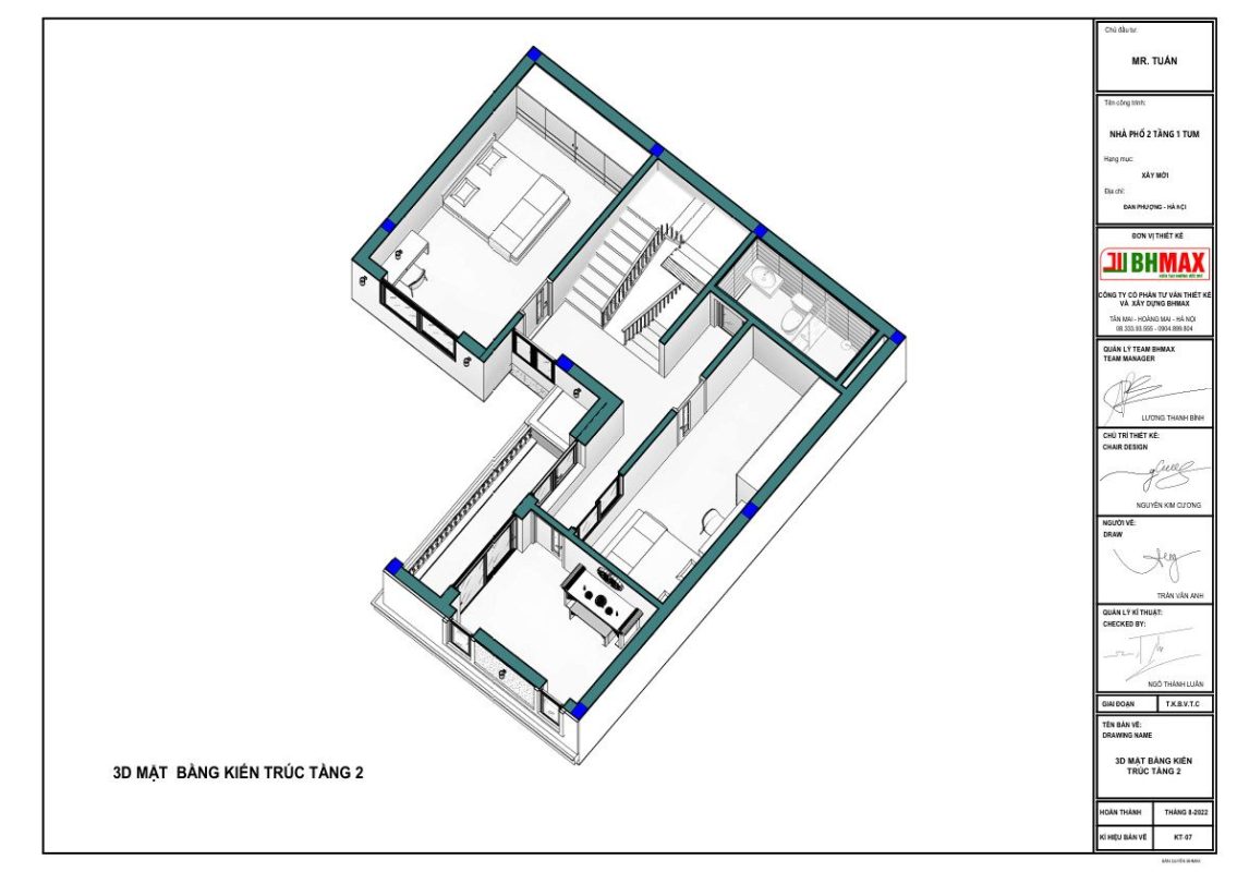
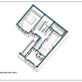
* Tầng 2:
- Phòng ngủ chính:
- Phòng ngủ chính là không gian rộng rãi và thoải mái, được bố trí ở phía trước hoặc phía sau của tầng.
- Có thể có phòng tắm riêng, tạo ra không gian riêng tư và tiện nghi cho chủ nhân căn phòng.
- Có cửa ra vào hoặc cửa sổ lớn, mang lại ánh sáng tự nhiên và tầm nhìn ra bên ngoài.
- Phòng ngủ phụ:
- Phòng ngủ phụ cũng rộng rãi và thoải mái, thích hợp cho các thành viên khác trong gia đình hoặc khách đến thăm.
- Có thể chia sẻ WC hoặc sử dụng WC dành riêng tùy thuộc vào thiết kế của ngôi nhà.
- WC:
- WC ở Tầng 2 được thiết kế để phục vụ cả hai phòng ngủ, mang lại sự tiện lợi cho việc sử dụng hàng ngày.
- Có thể được trang bị các thiết bị vệ sinh hiện đại như vòi sen, lavabo và bồn tắm hoặc bồn rửa.
- Phòng thờ:
- Phòng thờ là không gian linh thiêng và yên tĩnh, được bố trí tại một góc của Tầng 2.
- Có thể được trang trí với các biểu tượng tôn giáo, bức tượng và đèn trang trí để tạo không gian thiêng liêng và yên bình.
Tầng 2 là nơi dành riêng cho giấc ngủ và nghỉ ngơi, cũng như hoạt động tâm linh và linh thiêng. Với các phòng ngủ, WC và phòng thờ, Tầng 2 tạo ra không gian riêng tư và tiện nghi cho cả gia đình.
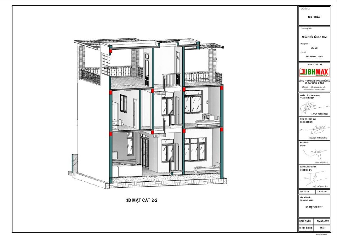
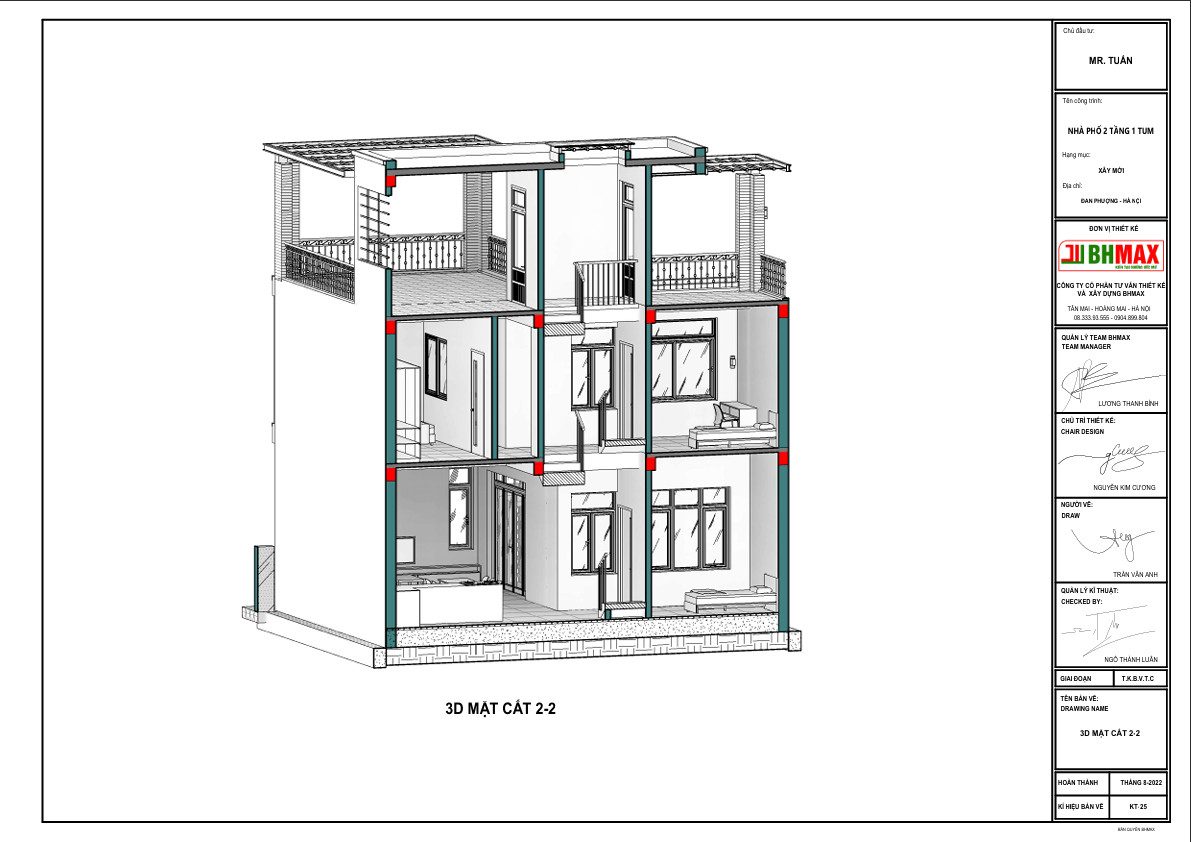
* Tổng thể:
Ngôi nhà được xây dựng với kiến trúc hiện đại và sang trọng, với hình dáng hình chữ L tạo ra không gian mở rộng và linh hoạt. Mặt tiền và mặt bên của ngôi nhà được thiết kế với các đường nét mạnh mẽ và độc đáo, sử dụng các vật liệu như gạch, kính và kim loại để tạo ra một cái nhìn độc đáo và thu hút Bên trong và bên ngoài, ngôi nhà này kết hợp giữa phong cách hiện đại và tiện nghi, tạo ra một môi trường sống sang trọng và thoải mái cho cả gia đình.




















