| Chủ đầu tư: Chị Quý | Số tầng: 1 |
| Địa chỉ: Nam Định | Diện tích xây dựng: 8mx12.5m |
| Loại hình: Hiện Đại | Tổng diện tích: 100 m2 |
Công năng:
|
|
Công trình hiện đại dưới đây là sự lựa chọn tham khảo cho các bạn có nhu cầu muốn thiết kế một ngôi nhà kết hợp kinh doanh vô cùng hợp lý. Dưới đây là các hình ảnh 3d cũng như thưc tế của công trình này mà do chính BHMAX thiết kế và thi công trọn gói
Kiến trúc hài hòa của công trình nhà thuốc
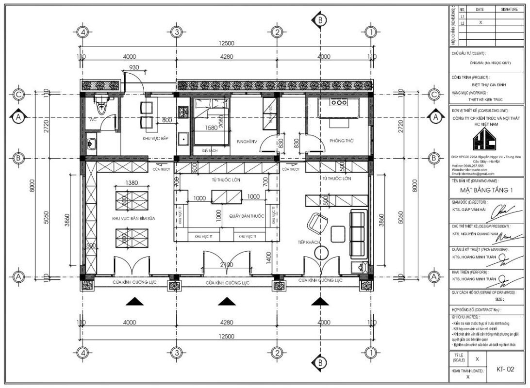
Mặt bằng bố trí công năng của công trình
Quá trình giám sát thi công móng của công trình
Quá trình đổ bê tông móng rất chuyên nghiệp và an toàn
Quá trình thi công xây tường
Quá trình thi công ghép cốp pha sàn
Hình ảnh công nhân đang thi công cả đêm để cho kịp tiến độ mà chủ đầu tư mong muốn
Quá trình thi công nghiệm thu thép sàn
Quá trình trát hoàn thiện cho công trình
Quá trình sơn hoàn thiện cho công trình
Hình ảnh nghiệm thu công trình cuối cùng để đưa vào sử dụng
Nếu bạn có nhu cầu tư vấn thiết kế nhà phù hợp với diện tích khu đất cũng như kinh tế hãy liên hệ ngay với BHMAX để nhận được tư vấn miễn phí từ kiến trúc sư nhé!















