Công trình nhà mái thái 2 tầng chữ L mang phong cách trẻ trung, hiện đại đang là xu thế hiện nay. Ngôi nhà là mơ ước của bao người về 1 tổ ấm đúng nghĩa. Để hiện thực hóa những ước mơ, đội ngũ kiến trúc sư của BHMAX đã không quản ngại đường xá về với gia đình Chú Long tại thành phố Thái Bình tư vấn tận tình và đưa ra ý tưởng thiết kế nên ngôi nhà.
| Chủ đầu tư: Anh Long | Số tầng: 2 |
| Địa chỉ: Thái Bình | Diện tích xây dựng: 12,5×6,7 m |
| Loại hình: Nhà mái thái | Tổng diện tích: 168m2 |
Công năng:
|
|

MẪU NHÀ MÁI THÁI 2 TẦNG CHỮ L ĐANG ĐƯỢC YÊU THÍCH NHẤT HIỆN NAY
Hiện nay có rất nhiều mẫu nhà mái thái 2 tầng chữ L được thiết kế từ các đơn vị thiết kế tại Việt Nam, tuy nhiên để có một mẫu nhà thiết kế đẹp và thi công được đúng theo bản thiết kế thì không phải đơn vị thiết kế nào cũng làm được bởi vì để chuyển thể từ bản vẽ sang thực tế còn là cả 1 quá trình trao đổi giữa kiến trúc sư, các kết cấu sư và đội ngũ công nhân thi công trực tiếp tại công trình. BHMAX luôn khẳng định là đơn vị thiết kế hang đầu thiết kế các mẫu nhà mái thái 2 tầng và thi công ngôi nhà bền đẹp đúng theo thiết kế.

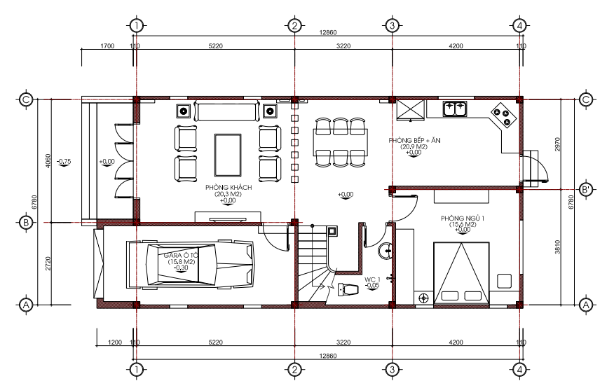
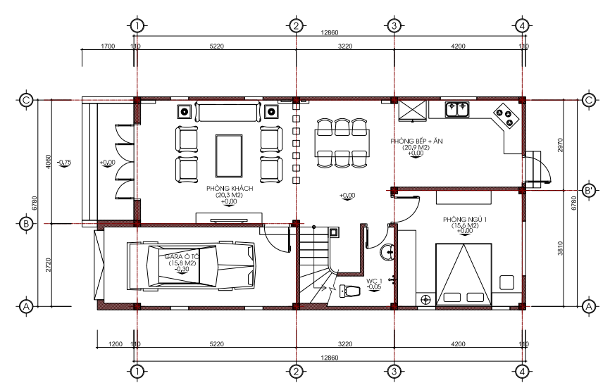
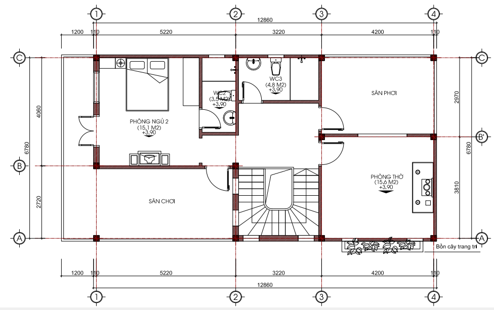
Mặt bằng kiến trúc tầng 1
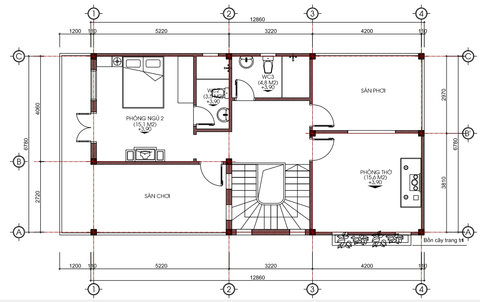
Mặt bằng kiến trúc tầng 2
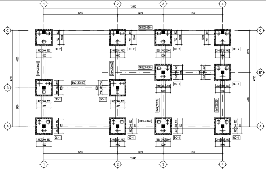
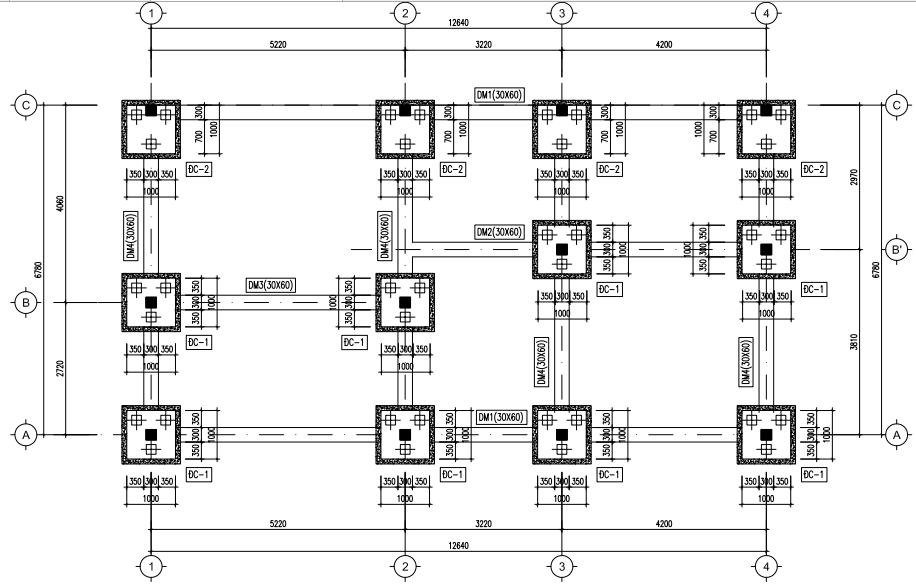
Mặt bằng thiết kế móng
TIẾN ĐỘ THIẾT KẾ VÀ THI CÔNG
Với đội ngũ dày dặn kinh nghiệm về thiết kế và thi công của BHMAX các bạn yên tâm và tin tưởng vào chúng tôi. Chắc chắn các bạn sẽ nhận được mẫu thiết kế sớm nhất ngôi nhà mơ ước của mình. Các ý tưởng và phương án thiết kế được đưa ra nhanh nhất thể hiện sự chuyên nghiệp trong khâu thiết kế và quá trình thi công chúng tôi luôn có cán bộ kỹ thuật hiện trường để đảm bảo chất lượng và tiến độ cho ngôi nhà từ đó tạo niềm tin tuyệt đối tới các gia chủ.
Các bạn thấy mẫu thiết kế mái thái 2 tầng chữ L này phù hợp với ngôi nhà mơ ước của mình thì nhanh tay liên hệ với chúng tôi để được tư vấn tận tình nhất.





