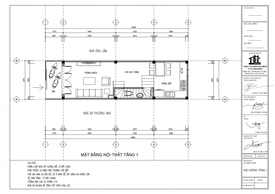
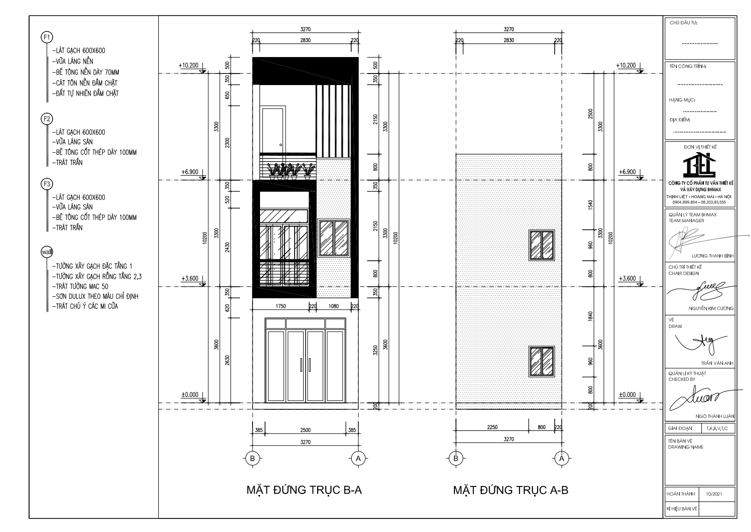
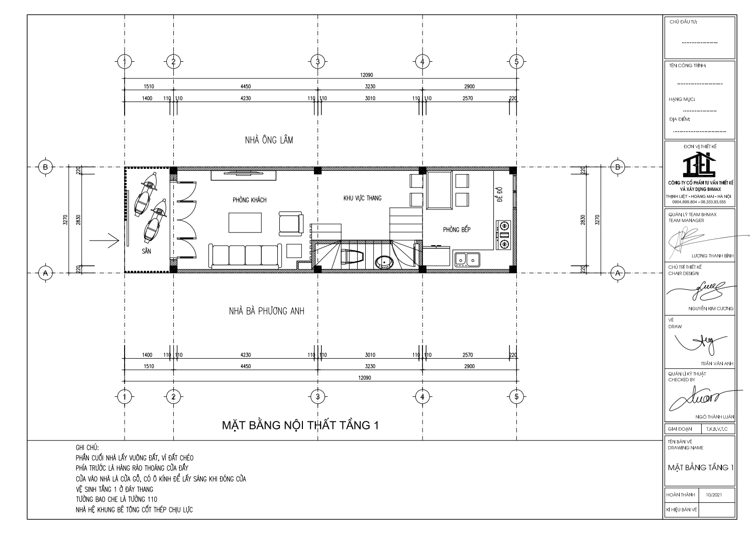
| Chủ đầu tư: Cô Phương | Số tầng: 3 |
| Địa chỉ: Thanh Trì, Hà Nội | Diện tích xây dựng: 3.2×12 m2 |
| Loại hình: Nhà Phố | Tổng diện tích: 210 m2 |
Công năng:
|
|
Nếu bạn đang đi tìm mẫu nhà Phố mang phong cách hiện đại trẻ trung mà sang trọng thì có thể tham khảo mẫu thiết kế của gia đình cô Phương có địa chỉ tại Thanh Trì, Hà Nội do BHMAX thiết kế và thi công.
Ngôi biệt thự 3 tầng hiện đại được kiến tạo từ những hình khối vuông vắn sắp đặt một cách khoa học và sáng tạo .
Thiết kế cửa với kích thước lớn bằng kính cường lực khung nhôm xingfa để đón gió, hứng sáng vào không gian bên trong ngôi nhà.
Nếu các bạn yêu thích mẫu thiết kế này, hoặc có nhu cầu tư vấn thiết kế nhà, hãy liên hệ để được kiến trúc sư của chúng tôi tư vấn chi tiết và cụ thể hơn!










