| Chủ đầu tư: Anh Tâm | Số tầng: 2 |
| Địa chỉ: Phúc Thọ, Hà Nội | Diện tích xây dựng: 11×12 m |
| Loại hình: Nhà hiện đại | Tổng diện tích: 264 m2 |
Công năng:
|
|
Các mẫu biệt thự hiện đại chưa bao giờ hết HOT cho tới hiện nay. Độc đáo trong kiến trúc, mới mẻ trong thiết kế đặc biệt là không gian nhà ở hướng tơi không gian xanh, rộng rãi và tiện nghi bậc nhất phản ánh tiêu chuẩn sống cao và gu thẩm mỹ đặc biệt của chủ nhà. Hôm nay BHMAX xin được giới thiệu đến mẫu nhà của anh Tâm có địa chỉ tại Hà Nội.
Mẫu biệt thự đẹp, tiện nghi sở hữu nhiều không gian sinh hoạt lý tưởng ở khu vực sân trước nhà.
Mặt bằng kiến trúc tầng 1 với công năng được sắp xếp bố trí hợp lí, thuận ttieenj với lối sống của gia chủ
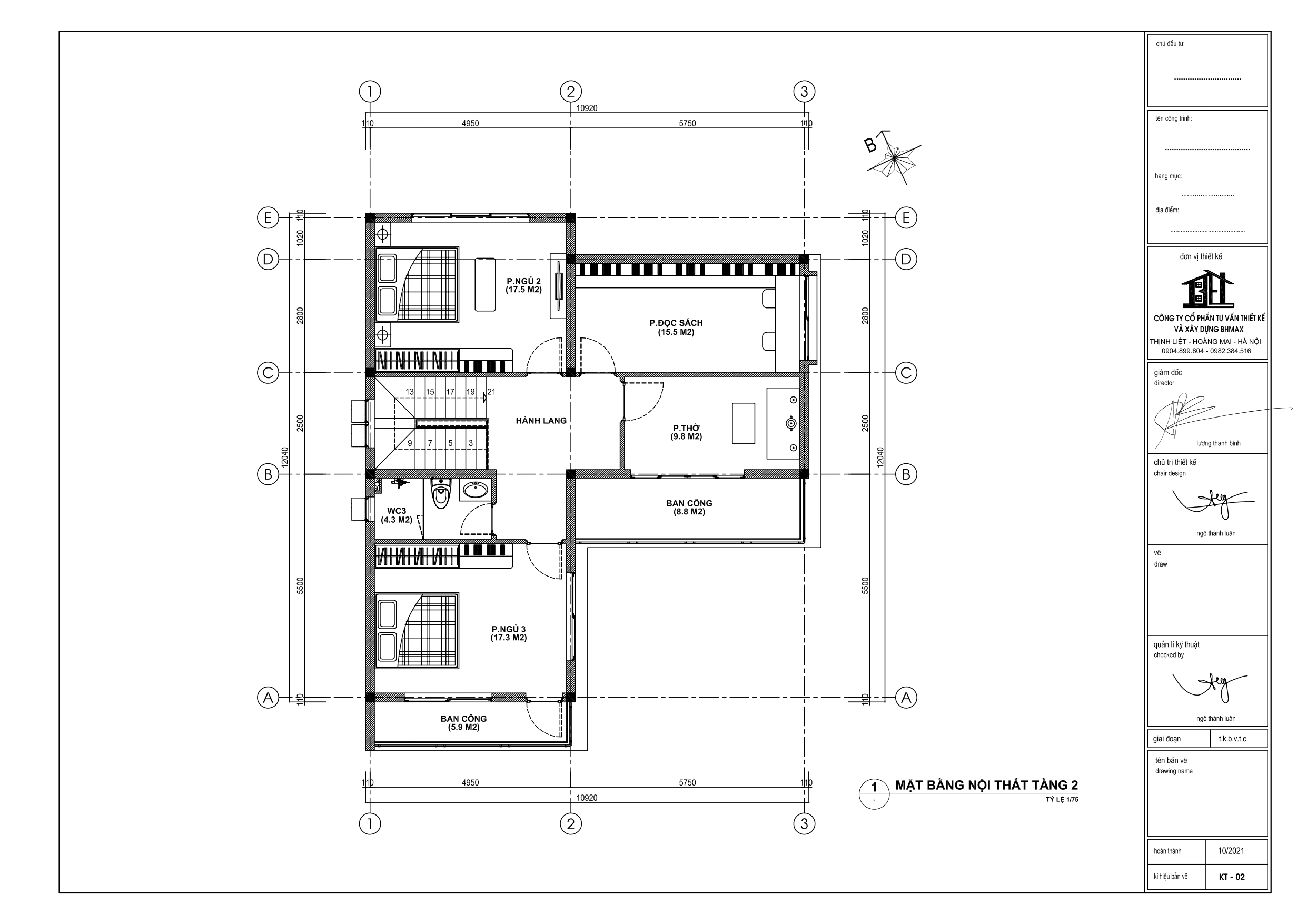
Mặt bằng kiến trúc tầng 2 với không gian rộng rãi, thoải mái, tiện nghi.

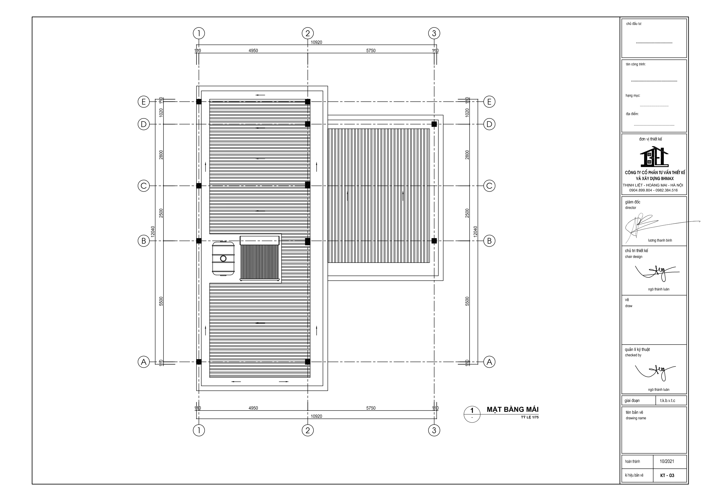
Mặt bằng kiến trúc mái
Cảm ơn bạn đã theo dõi bài viết, hãy tiếp tục đồng hành cùng BHMAX tham khảo các mẫu nhà đẹp nhé.





