| Chủ đầu tư: Anh Hoan | Số tầng: 2 |
| Địa chỉ: Hải Phòng | Diện tích xây dựng: 12,5×15 m |
| Loại hình: Nhà mái Thái | Tổng diện tích: 375m2 |
Công năng:
|
|
Nhà mái thái đang là một xu thế xây dựng bởi tính tiện dụng và thẩm mỹ. Tuy nhiên, mẫu nhà mái thái mà BHMAX giới thiệu tới các bạn ngày hôm nay có một chút khác biệt so với các mẫu nhà mái thái thông dụng, cụ thể ở đây là phong cách kiến trúc lệch tầng. Vậy phong cách lệch tầng là như thế nào các bạn hãy cùng chúng tôi tìm hiểu ở bài viết dưới đây:
Mặt cắt đứng mẫu nhà 2 tầng mái thái tại tại Hải Phòng
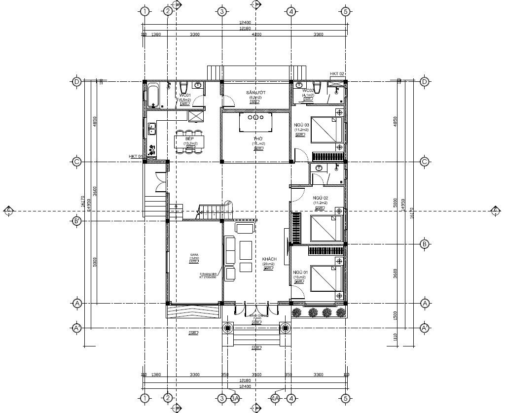
Mặt bằng kiến trúc tầng 1
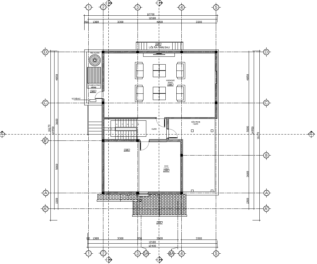
Mặt bằng kiến trúc tầng 2
Nếu các bạn yêu thích mẫu thiết kế này, hoặc có nhu cầu tư vấn thiết kế nhà, hãy liên hệ để được kiến trúc sư của chúng tôi tư vấn chi tiết và cụ thể hơn.







