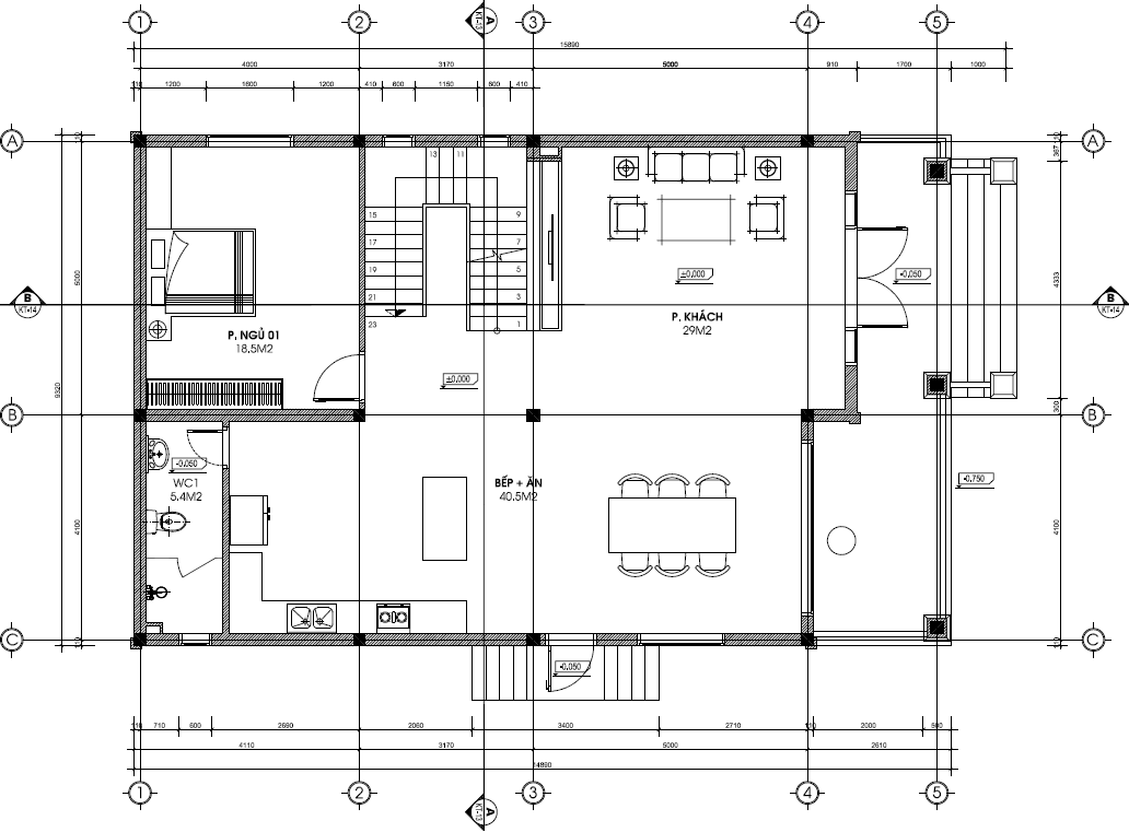
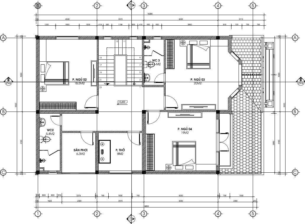
| Chủ đầu tư: Trần Văn Liêm | Số tầng: 2 |
| Địa chỉ: Hà Nội | Diện tích xây dựng: 9,5×15 m |
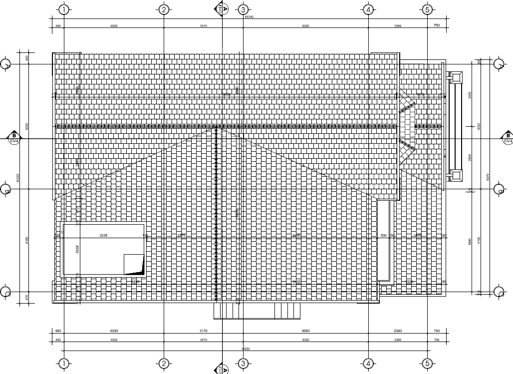
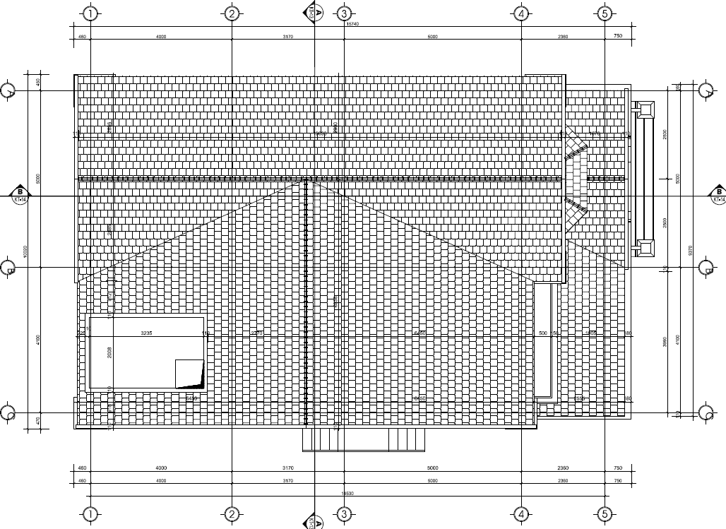
| Loại hình: Mái Thái | Tổng diện tích: 285 m2 |
Công năng:
|
|
Nhà mái thái đang là một xu thế xây dựng bởi tính tiện dụng và thẩm mỹ. Hôm nay, chúng tôi xin giới thiệu đến các bạn mẫu nhà mái thái 2 tầng được đội ngũ kĩ sư của BHMAX tham gia thiết kế tại Hà Nội.
Nếu các bạn yêu thích mẫu thiết kế này, hoặc có nhu cầu tư vấn thiết kế nhà, hãy liên hệ để được kiến trúc sư của chúng tôi tư vấn chi tiết và cụ thể hơn.






