Biệt thự mái Thái 2 mặt tiền siêu đẹp – Chỉ từ 1,8 tỉ

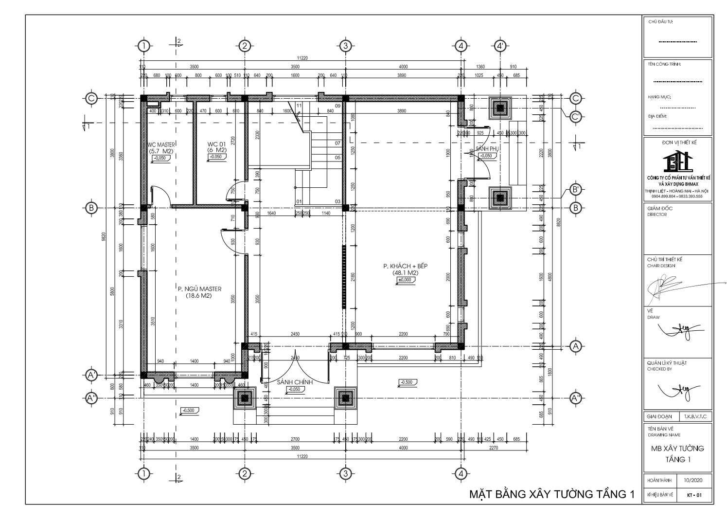
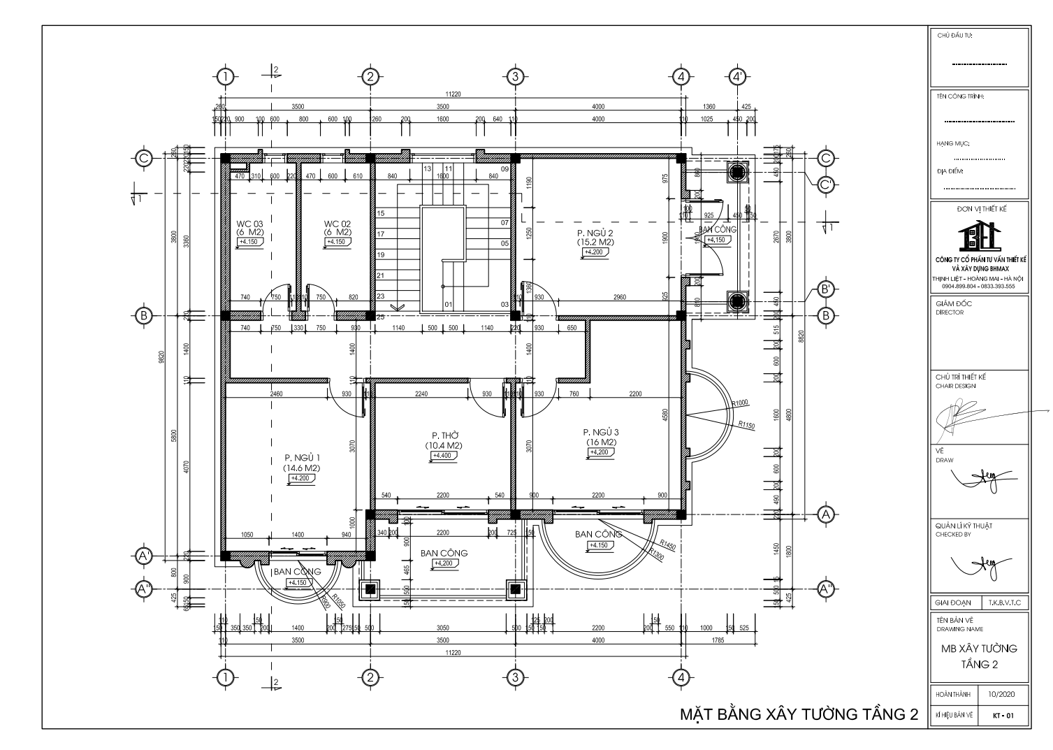
Chủ đầu tư: Chú Khoát Số tầng: 2
Địa chỉ: Ứng Hòa Diện tích xây dựng: 9,8x11m
Loại hình: Nhà mái Thái Tổng diện tích: 215m2
Công năng:

  • Tầng 1: 1 phòng khách +  phòng bếp + 2 phòng vệ sinh + 1 phòng ngủ.
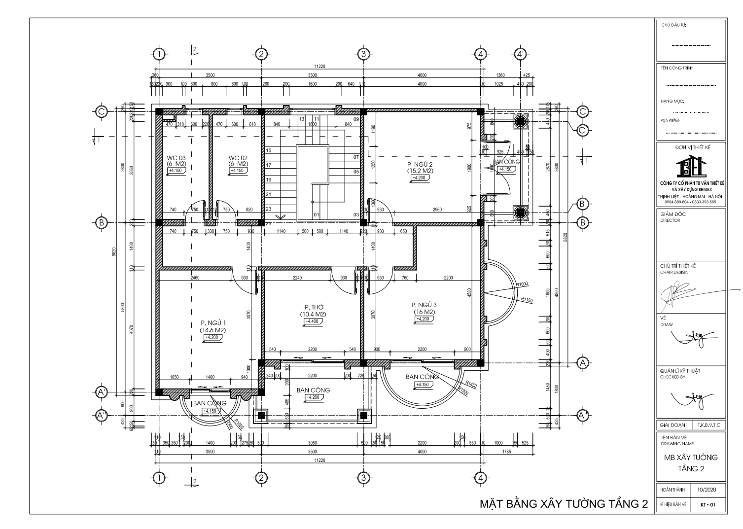
  • Tầng 2: 1 ban công + 2 phòng vệ sinh + 3 phòng ngủ + 1 phòng thờ .
Mặt bằng kiến trúc tầng 1
Mặt bằng kiến trúc tầng 2

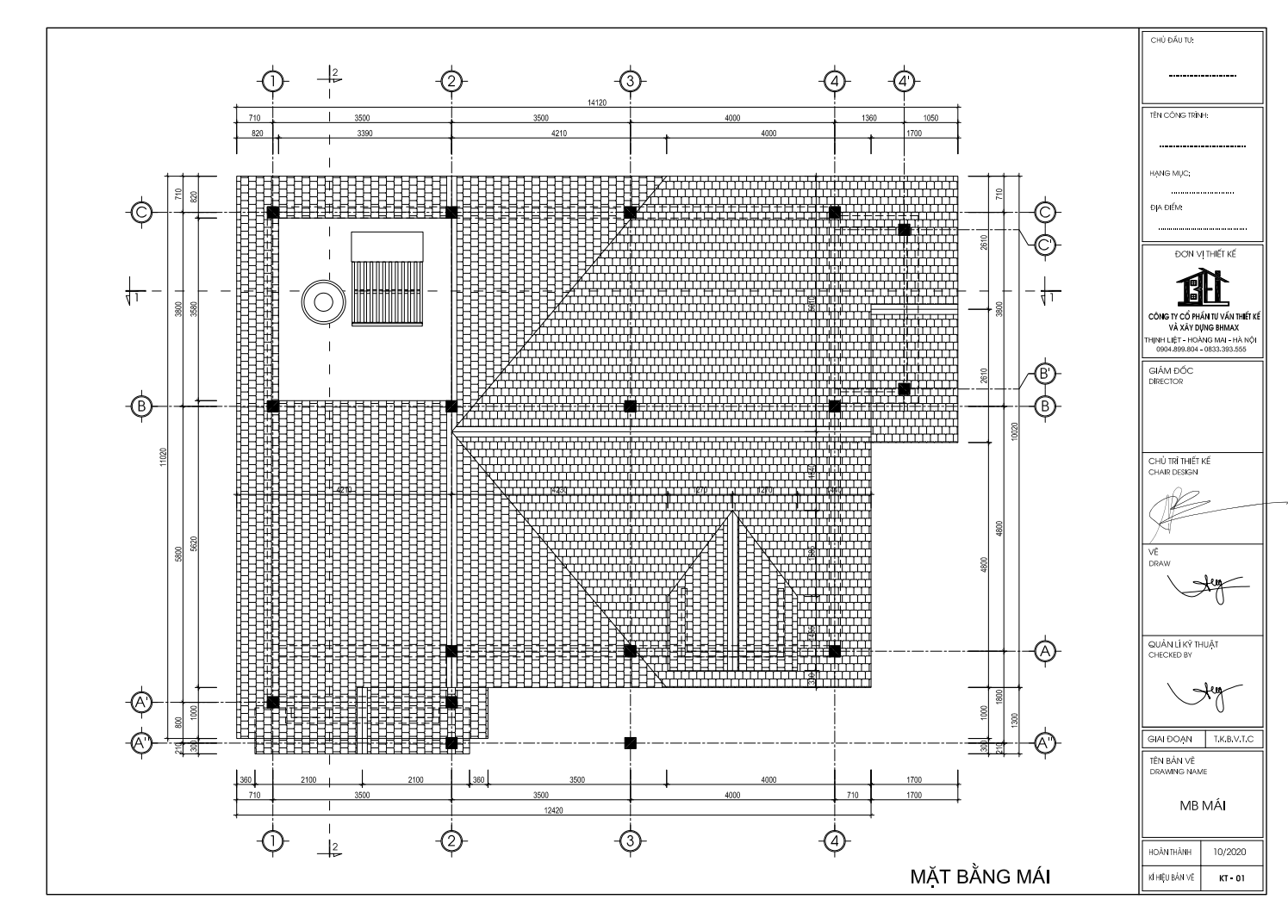
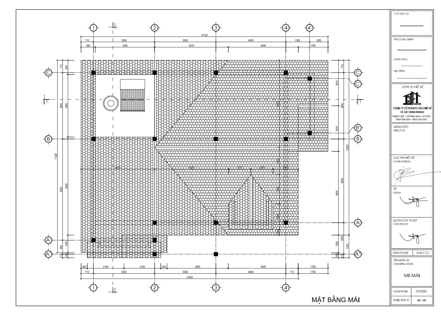
Mặt bằng kiến trúc mái

Nếu các bạn yêu thích mẫu thiết kế này, hoặc có nhu cầu tư vấn thiết kế nhà, hãy liên hệ để được kiến trúc sư của chúng tôi tư vấn chi tiết và cụ thể hơn!

Trả lời

Email của bạn sẽ không được hiển thị công khai.

0833393555