| Chủ đầu tư: Chú Thắng | Số tầng: 3 |
| Địa chỉ: Bình Chánh | Diện tích xây dựng: 8,6×14,3 m2 |
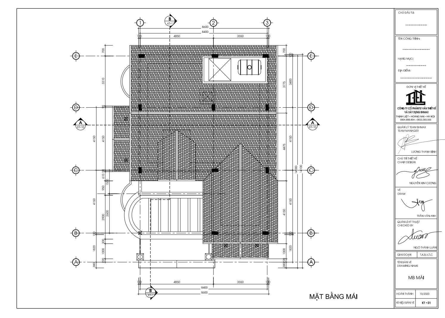
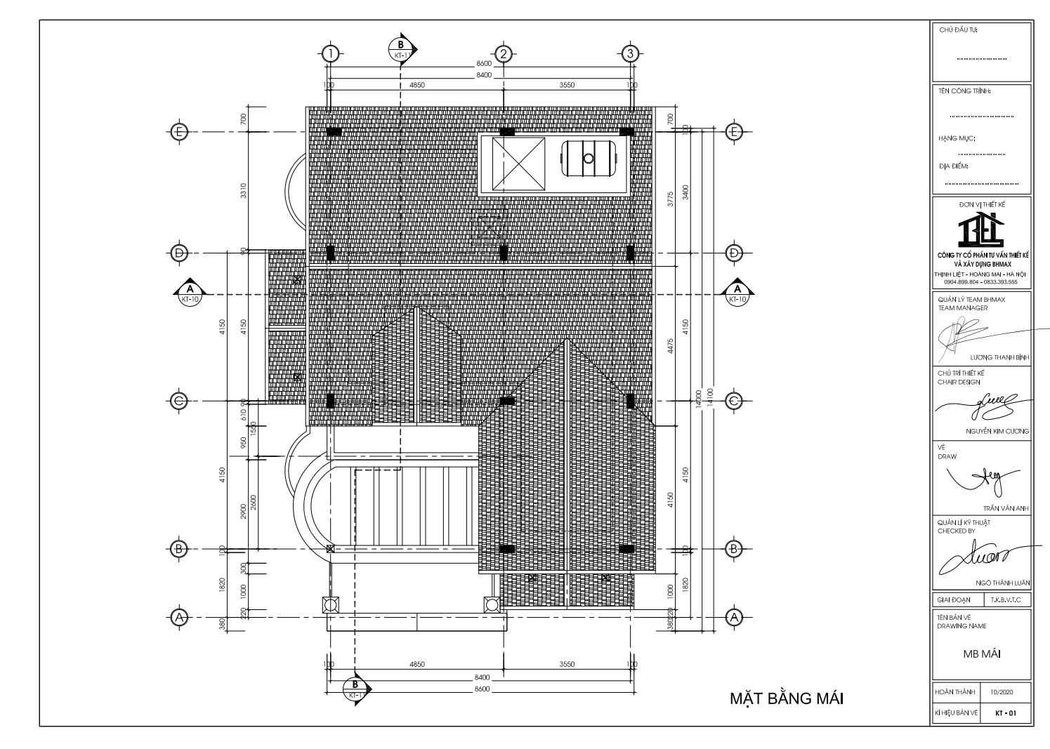
| Loại hình: Mái Thái | Tổng diện tích: 369 m2 |
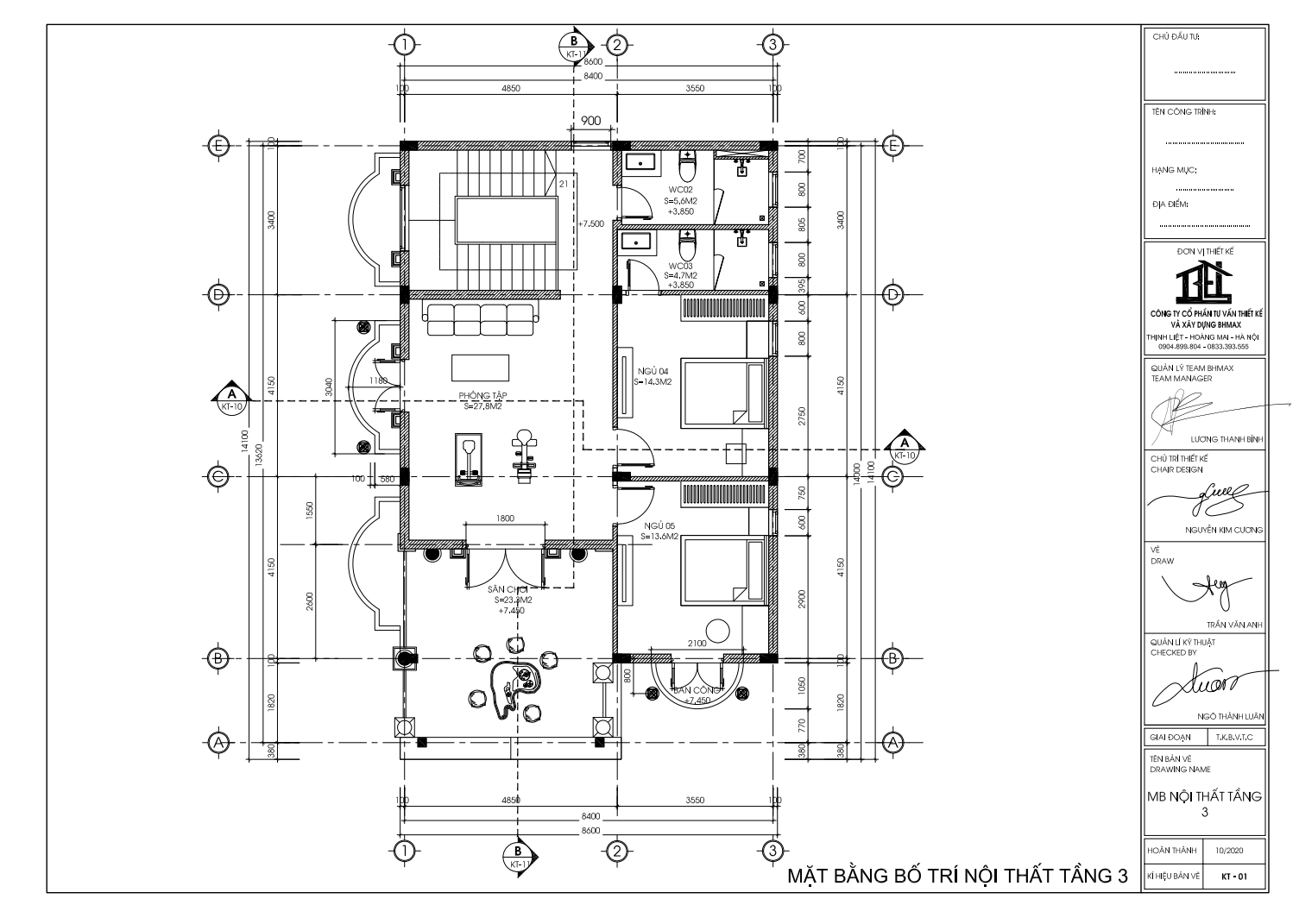
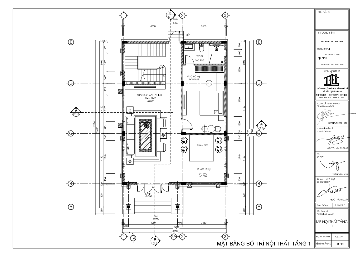
Công năng:
|
|
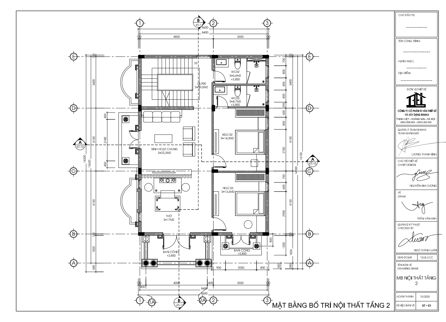
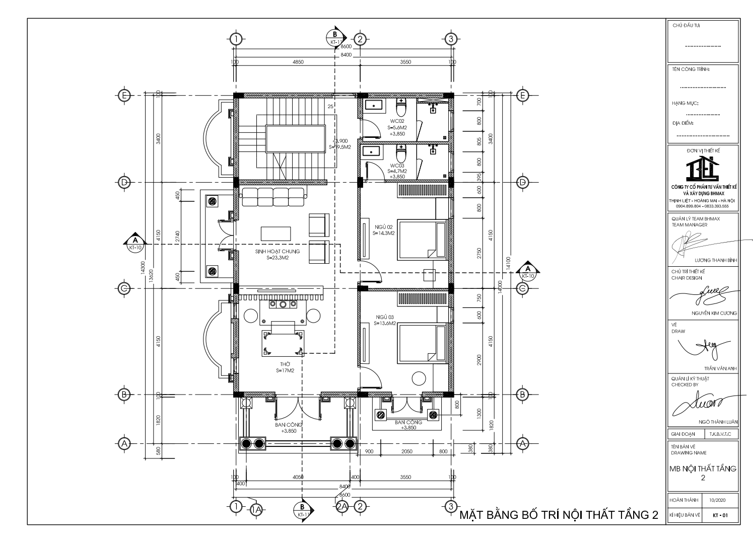
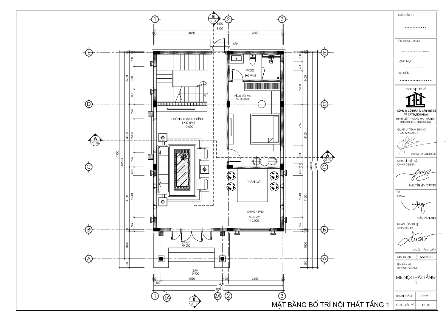
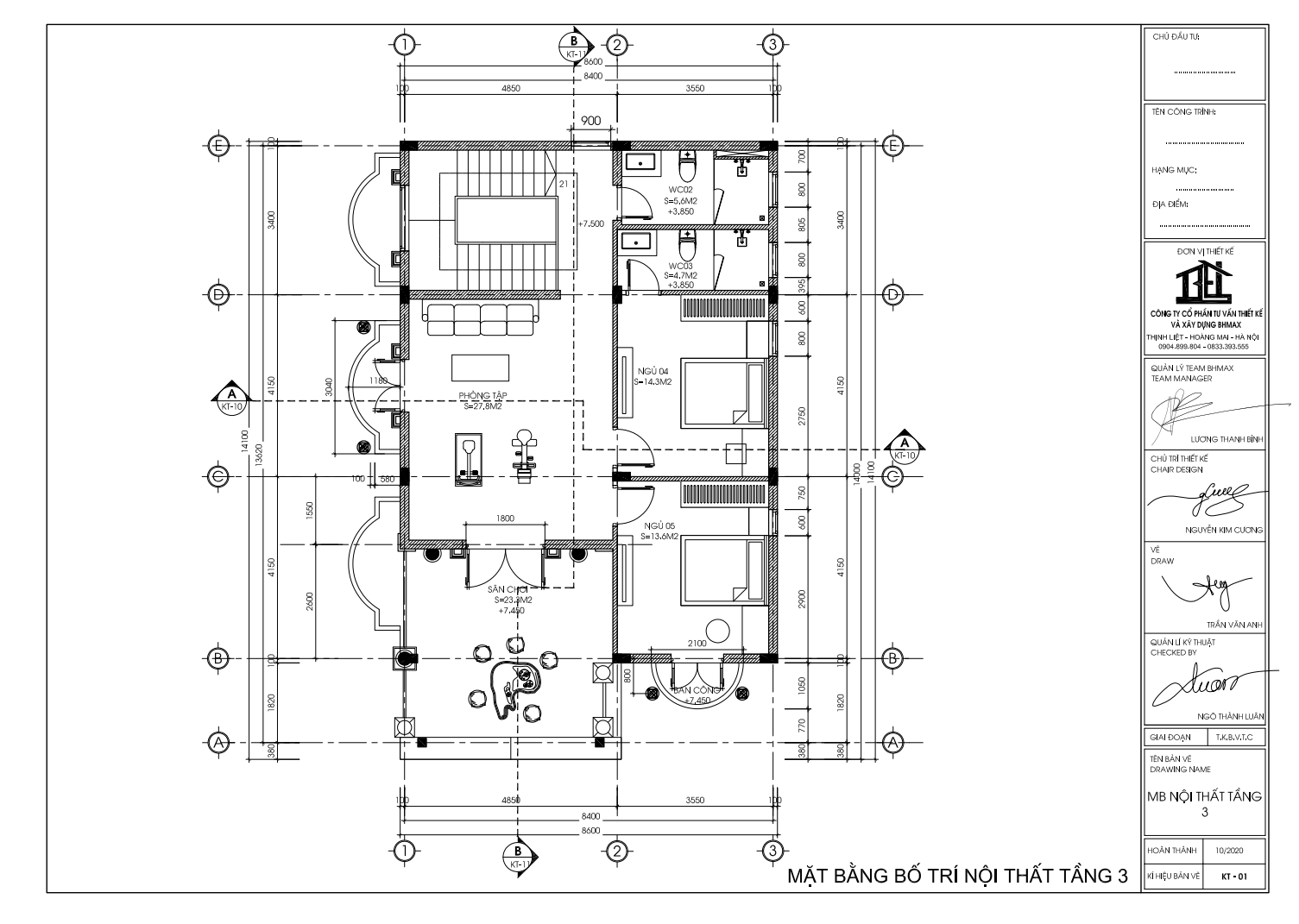
Mời các bạn tham khảo công năng mẫu nhà mái Thái 3 tầng xu hướng mềm mại, hiện đại
Nếu các bạn yêu thích mẫu thiết kế này, hoặc có nhu cầu tư vấn thiết kế nhà, hãy liên hệ để được kiến trúc sư của chúng tôi tư vấn chi tiết và cụ thể hơn!






