I, Thông tin tổng quan công trình
- Chủ đầu tư : Công ty TNHH ITLS Việt Nam.
- Địa điểm xây dựng : KCN Thuận Thành 3 – Thanh Khương – Thuận Thành – Bắc Ninh.
- Đơn vị thiết kế : Công ty Cổ phần tư vấn thiết kế và xây dựng BHMax.
- Năm thiết kế : Tháng 6/2016.
- Công năng thiết kế : Xưởng sản xuất kết hợp văn phòng.
- Diện tích thiết kế : Xưởng sản xuất 28000 x 106440 mm
: Nhà văn phòng 13320 x 28000 mm
II, Yêu cầu thiết kế từ chủ đầu tư
Nhà xưởng kết hợp nhà văn phòng có tổng diện tích khoảng 3.354m2
trong đó : Nhà văn phòng khoảng 373 m2, nhà xưởng khoảng 2.981m2.
Nhà văn phòng:
Thiết kế với 2 tầng 1 tum và công năng các tầng cụ thể :
Tầng 1: 1 Lễ tân + 2 phòng làm việc + 1 nhà ăn + 1 bếp + 1 kho + 2 phòng thí nghiệm + 2 wc.
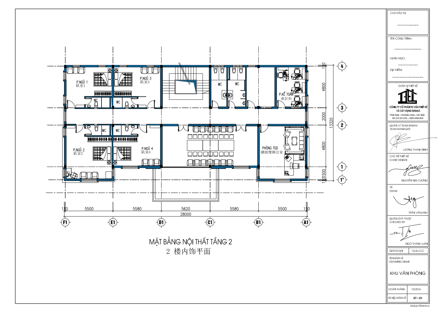
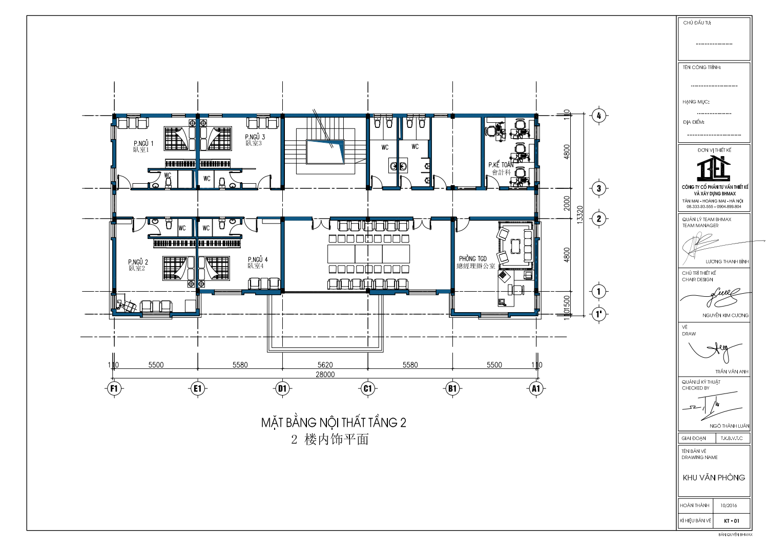
Tầng 2: 1 phòng tổng giám đốc + 4 phòng ngủ + 1 phòng kế toán + 2 wc chung.
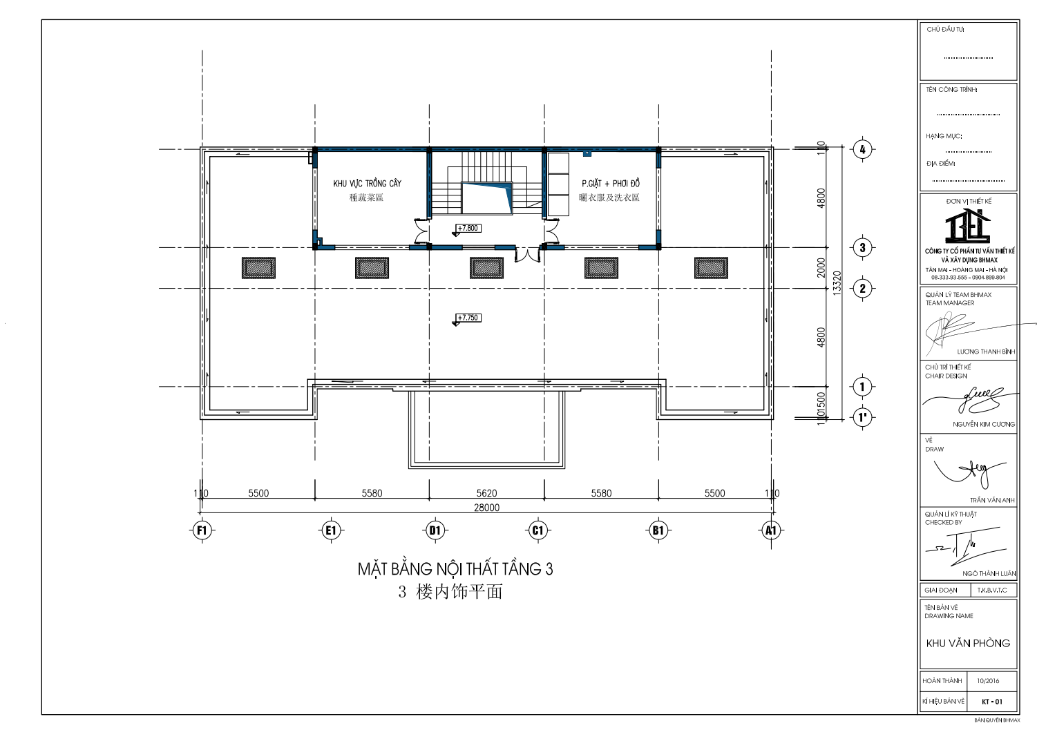
Tầng 3: 1 khu vực trồng cây + 1 khu vực giặt phơi đồ.
Nhà xưởng :
Nhà xưởng thi công bằng kèo thép ( hay còn gọi là nhà thép tiền chế )
Công năng yêu cầu:
Tầng 1: Một nhà xưởng chia làm 3 khu sản xuất + 2 wc, tầng 1 nhà xưởng và nhà văn phòng sẽ được thông với nhau bằng các cửa đi.
Tầng 2 : 1 khu sản xuất + 2 phòng họp.
III, Giai đoạn lên phương án và tư vấn cho chủ đầu tư
Nhà xưởng được phân chia thành 2 khu chức năng là xưởng sản xuất và văn phòng, nhờ đó mang lại rất nhiều lợi ích cho doanh nghiệp như:
– Tiết kiệm được chi phí đầu tư nhờ việc tận dụng diện tích nhà xưởng để làm văn phòng
– Giúp doanh nghiệp linh hoạt hơn trong quá trình vận hành
Dựa trên yêu cầu của chủ đầu tư các kiến trúc sư và kĩ sư BHMax đã nỗ lực để thực hiện và hoàn thành:
Mặt bằng tầng 1
Mặt bằng tầng 2
Mặt bằng mái
III.2, Nhà văn phòng
Mặt bằng tầng 1
Mặt bằng tầng 2
Mặt bằng tầng 3
Quý khách hàng và quý công ty có nhu cầu xin liên hệ để được đội ngũ kiến trúc sư và kĩ sư của BHMax tư vấn chi tiết và cụ thể hơn!!!



