I, Thông tin tổng quan công trình
- Chủ đầu tư : Công ty TNHH Công Nghiệp TOYOTAKI Việt Nam.
- Địa điểm xây dựng : KCN Khai Quang – Vĩnh Yên – Vĩnh Phúc.
- Đơn vị thiết kế : Công ty Cổ phần tư vấn thiết kế và xây dựng BHMax.
- Năm thiết kế : Tháng 4/2014.
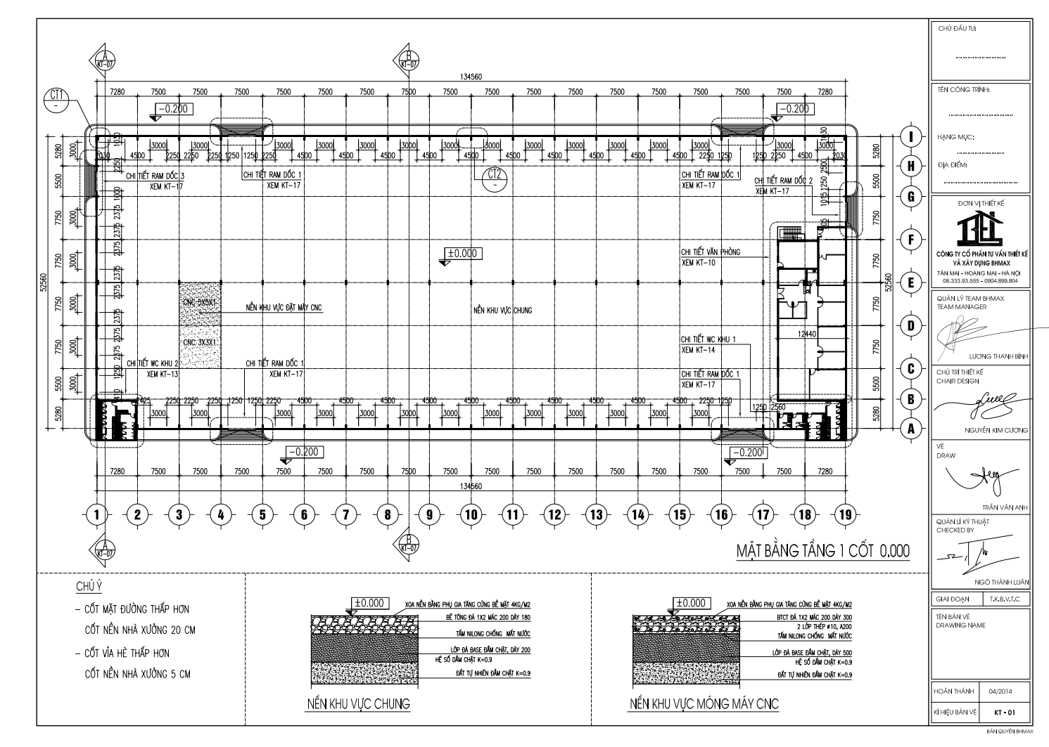
- Công năng thiết kế : Xưởng sản xuất kết hợp văn phòng.
- Diện tích thiết kế : Giai đoạn 2 là 7.155m2
II, Yêu cầu thiết kế từ chủ đầu tư
Nhà xưởng kết hợp nhà văn phòng có tổng diện tích khoảng 7.155m2
Nhà xưởng :
Nhà xưởng thi công bằng kèo thép ( hay còn gọi là nhà thép tiền chế )
Công năng yêu cầu:
Tầng 1: Nhà xưởng chia làm các khu vực sản xuất, xưởng gồm 2 cầu trục 3T và 1 cầu trục 7.5T
Tường xây cao 3,2m, trên được thưng tôn dày 0.4mm
Nhà văn phòng :
Nhà văn phòng nằm trong nhà xưởng nhằm giúp doanh nghiệp linh hoạt hơn trong vấn đề vận hành.
Công năng yêu cầu:
Tầng 1: Diện tích khoảng 480m2, chiều cao 3.5m
III, Giai đoạn lên phương án và tư vấn cho chủ đầu tư:
Mặt bằng cao độ +8.000
Mặt bằng mái
Quý khách hàng và quý công ty có nhu cầu xin liên hệ để được đội ngũ kiến trúc sư và kĩ sư của BHMax tư vấn chi tiết và cụ thể hơn!!!



